
Imati originalna rješenja, iskoristiti prostor do posljednjeg centimetra, staviti sve potrebno za život i postići visoku dozu estetike - zvuči nespojivo s malim brojem kvadrata, zar ne? No, imati maleni stan koji lijepo izgleda a k tome je funkcionalan itekako je moguće. U to će vas uvjeriti najnoviji projekt studija Mirjane Mikulec. Proces njegova uređenja – od prikaza zatečenog stanja, dogovora s vlasnicima, projektiranja i temeljitog preuređenja do konačnog izgleda moći ćete pratiti u tridesetominutnom specijalu, u subotu 25. studenog, u emisiji InDizajn.

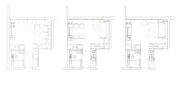
Riječ je o stanu površine svega 21 kvadrat koji se nalazi na posljednjem katu novozagrebačkog nebodera, koji je zatečen u posve zapuštenom stanju i podvrgnut temeljitoj adaptaciji. Vjerujemo da će primjer ovoga stana biti nadahnuće i izvor dobrih ideja za sve koji žive u malom prostoru ili se spremaju urediti vikendicu, stan za najam ili apartman na moru.

Uređenje malog prostora daje rješenja idealna za kopiranje
'Kada vlasnici vide stan skromne kvadrature koji usto izgleda derutno i potrebno je sve – od instalacija, preko zidova i podova, do namještaja i posljednjeg detalja obnoviti u njemu, teško im je zamisliti kako on može izgledati u konačnici. No, uz pomoć dizajnera i arhitekata stvara se vizija i ostvaruje maksimum – kako prostorni, tako i stilski', objašnjava dizajnerica Mirjana Mikulec te dodaje kako je ovakav prostor bio veliki izazov za nju i Matka Šimića, arhitekta koji je vodio projekt. No izazovi stvaraju nove prilike i dizajn čini pomake - iznjedre se vrlo kreativna prostorna i estetska rješenja i ideje koje su sjajne za kopiranje.

Idealno je kada ih vlasnici prihvate i daju arhitektima odriješene ruke. Tako je bilo i u ovom slučaju, s nekoliko zahtjeva. Prvi se odnosio na stvaranje ugodnog i toplog prostora koji ne bi trebao ostavljati dojam spavaonice.
Kako postići da mali stan ne izgleda kao spavaonica
'Ovo nam je ustvari bio najveći problem – kako imati pravi krevet u stanu, a ne pretvoriti ga u spavaonicu? Naš klijent imao je stav koji nam se svidio na prvu – želju za pravim ležajem, a ne neudobnim kaučem koji se razvlači svaku večer. Skriveni odnosno zidni krevet je sjajna opcija za mali stan, apartman ili kada primjerice želite u stanu imati dodatni ležaj za goste. Tako savršeno možete iskoristiti, kao što smo mi u ovom projektu, zid iza sofe. A nju ne morate pomicati kada se krevet rasklapa budući da se nadvije nad nju', objašnjava dizajnerica dodajući kako je ovaj krevet rađen po mjeri, kao i svi ormari te kuhinja.

Neobična pozicija za TV omogućila je uređaj velikih dimenzija
'Kada imate mali prostor na raspolaganju, onda morate biti spremni i na manje kompromise. Iako, ovaj s neobičnom pozicijom za TV je istovremeno i vrlo originalan. Drago mi je da se klijentu svidjela ova ideja jer baš nije svakidašnja. A i veliki adut je bio stavljanje velikog ekrana, što inače ne bi bilo moguće da je TV stavljen negdje drugdje u prostoriju', savjetuje Mirjana Mikulec.

Odabir boja za mali stan
I za kraj, malo o bojama i materijalima u malom interijeru… Jer, svi znamo da mali prostori vole svijetle boje – tako se stvara dojam prozračnosti i prostornosti.

'Kako je prostor mali, nastojalo se svakom odabranom bojom naglasiti posebnu namjenu tako da je ovaj mali prostor postao jako kolorističan, a da se pritom nije zagušio prostor. To je iznimno bitno u malim stanovima – ne trebate se odreći intenzivnih i tamnih boja, kao ni uzoraka ali morate paziti u njihovu doziranju. Boje i uzorci su najbolji u ulozi akcenata, dok bi baza treba biti svjetlija i po mogućnosti neutralna', smatra dizajnerica.




